3 tons mobil portabel portalkran
Produktbeskrivning
En 3-ton mobil portabel portalkran är ett självbärande, fristående lyftsystem designat för att lyfta och flytta tunga laster upp till 5 ton (10 000 lbs / 4 536 kg). Dess viktigaste egenskap ärrörlighet; den är vanligtvis monterad på hjul eller hjul, vilket gör att den enkelt kan flyttas runt en verkstad, lager eller arbetsplats utan att kräva en fast installation som en bryggkran.
Kärnkomponenter: PLC, lager, växellåda, motor, växel
Ursprungsort: Henan, Kina
Garanti: 1 år
Vikt (KG): 500 kg
Videoutgående-inspektion: tillhandahålls
Maskintestrapport: Tillhandahålls
Färg: Anpassad
Kranfunktion: Lättmanövrerad
Kapacitet: 1-20t
Typ: Enkelbalk
Strömförsörjning: 110V/220V/230V/380V/440V
Kontrollmetod: markkontroll+ fjärrkontroll (anpassad)
MOQ: 1 set
Lyftmekanism: Elektrisk lyftanordning
Arbetsuppgift: A3-A4

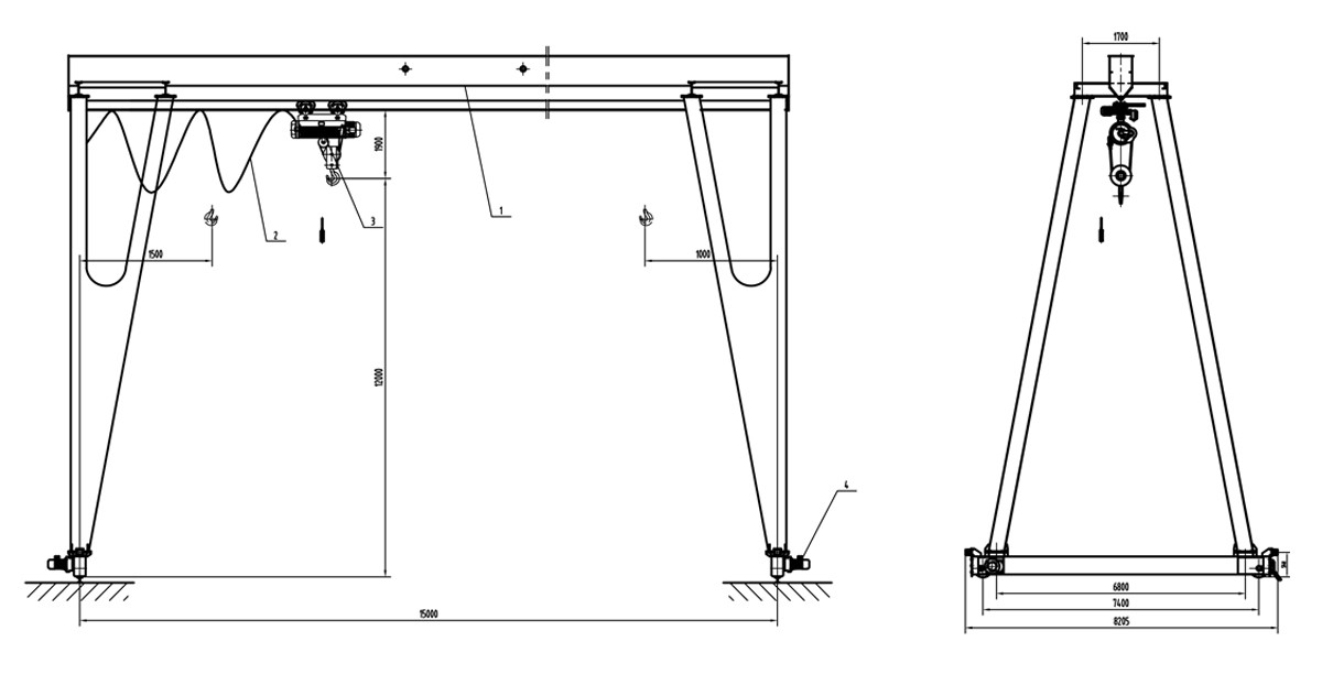
Bilder och komponenter
1. Huvudstrukturell ram
Detta är kranens primära-lastbärande struktur.
Ben (upprättstående):Två vertikala strukturer som bär upp hela kranen och lasten. De är vanligtvis konstruerade av hög-lådsektioner av stål eller I-balkar för maximal styrka och motståndskraft mot böjning. På mobila portaler är benen nästan alltid justerbara.
Brobalk (översta balk):Den horisontella balken som spänner över avståndet mellan de två benen. Den stöder hissen och vagnen och måste vara konstruerad för att motstå böjning (böjning) under full belastning. Det kan vara en enkelbalk (enkelbalk) eller två balkar (dubbelbalk) för tyngre kapaciteter och längre spännvidder. En 5-tonskran är vanligtvis en balkkonstruktion.
Uppiggande:Diagonala eller tvärbalkar som förbinder benen med brobalken eller med varandra. De ger kritisk stabilitet och förhindrar att strukturen ställer sig (deformeras till ett parallellogram) under sidobelastningar eller under rörelse.

2. Mobilitet och stödsystem
Det är detta som gör kranen "mobil och bärbar".
Basram / tröskelbalk:Den horisontella ramen längst ner på varje ben som ger ett stabilt fotavtryck. Den fördelar kranens vikt och belastning över ett större område.
Hjul/hjul:Kraftiga-, svängbara eller styva hjul monterade på basramen. De är vanligtvis gjorda av smidd stål eller hög-polyuretan.
Svängbara hjul:Tillåt rundstrålande rörelse och enkel manövrering.
Styva/fasta hjul:Ger stabilitet i en färdriktning.
En kombination av svängbara och styva hjul används ofta för optimal kontroll.
Bromsar/lås:Viktigt för säkerheten. Varje hjul kommer att ha en bromsmekanism.
Hjulbromsar:Stoppa hjulet från att rotera.
Svängbara lås:Förhindra att hjulet svänger och låser kranens färdriktning.
Stödben / domkraftsskruvar:Manuella skruv-stöd som kan förlängas för att lyfta hjulen från marken och överföra lasten direkt till en stabil, fast punkt. Detta är avgörande för att stabilisera kranen innan ett lyft.
![]() |
![]() |
3. Lyft- och översättningsmekanism
Komponenterna som faktiskt hanterar och flyttar lasten.
Lyftenhet:Den motoriserade enheten som gör lyft och sänkning. Det kan vara antingen akättingtelfer(vanligare för bärbara applikationer på grund av dess kompakta storlek och hållbarhet) eller avajerlyft(används ofta för högre hastigheter och större lyfthöjder).
Vagn:Enheten som bär lyften längs med brobalken. Föraren skjuter den manuellt (för lättare modeller) eller så kan den vara motoriserad (motordriven-vagn) för exakt positionering av tunga laster.
Krok:Den slutliga lasthållande komponenten, fäst vid lyftanordningens kedja eller vajer. Den är utrustad med en säkerhetsspärr för att förhindra att lyftselen eller lasten av misstag glider av.
![]() |
![]() |
4. Justering och förlängningssystem
Nyckelfunktioner som förbättrar mångsidigheten hos en bärbar portal.
Höjdjustering:Tillåter kranen att anpassa sig till olika lasthöjder och krav på frigång. Detta görs vanligtvis via mekanismer med nålar eller skruv-:
Nålade hål:Bensektionerna har en serie hål; ett stift sätts in på önskad höjd. Snabbt och säkert, men erbjuder fasta steg.
Skruvgänga / teleskopiska ben:En del av benet skruvas in i en annan, vilket möjliggör oändlig höjdjustering inom dess räckvidd.
Spännvidd / breddjustering:Tillåter att avståndet mellan benen ändras för att rymma bredare belastningar. Detta uppnås vanligtvis genom att ha en teleskopisk brobalk eller genom att använda förlängningsinsatser som fästs på huvudbalken.
5. Säkerhets- och driftskomponenter
Avgörande för säker och effektiv drift.
Säkerhetsspärr (krokspärr):En fjäderbelastad-grind på kroken som förhindrar selar från att lossa.
Överbelastningsgränsbrytare (tillval på vissa modeller):En elektrisk säkerhetsanordning som automatiskt bryter strömmen till lyften om den försöker lyfta över sin nominella kapacitet (5 ton).
Stötfångare / ändstopp:Fysiska stopp i ändarna av brobalken för att förhindra att vagnen rinner av rälsen.
Manuella skjuthandtag:Stänger fästa vid benen eller basen för att tillåta en förare att säkert trycka och manövrera kranen utan att hamna i en klämpunkt.



.
1. Ljud- och ljuslarmsystem (reselarm)
Detta system ger aktiva varningar före och under rörelse.
Ändamål:
Personalsäkerhet:För att varna alla som arbetar i närheten om att kranen är på väg att röra sig eller rör sig. Detta är särskilt viktigt för portabla portaler eftersom de ofta används i delade eller överbelastade verkstadsutrymmen.
Tillgångsskydd:För att varna förare att ta bort hinder från kranens väg.
Hur det fungerar:
Aktivering:Larmet är vanligtvis kopplat till kranens färdmotorkrets. Den aktiveras automatiskt så snart föraren kopplar in färdriktningen (t.ex. trycker på knappen på hängaren för framåt eller bakåt).
Komponenter:
Beeper / Siren:Avger ett högt, distinkt och intermittent pipljud (t.ex. 85-100 dB). Ljudet måste vara hörbart över bakgrundsljud från verkstaden.
Roterande beacon eller stroboskopljus:Ett starkt, vanligtvis bärnstensfärgat eller rött, blinkande ljus ger en tydlig visuell varning, vilket är viktigt i bullriga miljöer eller för personal som bär hörselskydd.
Typisk operationssekvens:
Operatören väljer färdriktning på hängsmycken.
Först ljuder larmet och lampan blinkarunder en förinställd-tid (t.ex. 2–5 sekunder)förekranhjulen börjar snurra.
Kranen börjar röra sig och larmet och ljuset fortsätter att fungera tills färden stoppas.
2. Gränslägesbrytare (säkerhetsbegränsningar)
Dessa är passiva säkerhetsanordningar som automatiskt bryter strömmen till en motor för att förhindra över-rörelse. För en mobil portalkran finns de mest kritiska gränslägesbrytarna påsjälva lyftenheten.
Ändamål:
För att förhindra att lyftanordningen höjer eller sänker krokblocket utanför dess säkra fysiska gränser, skyddar utrustningen och lasten.
Typer och platser:
a) Övre gränslägesbrytare (hiss upp)
Fungera:Detta ärviktigaste säkerhetsgränslägesbrytare. Den stoppar lyftmotornförekrokblocket eller remskivan kommer i kontakt med trumman eller lyftanordningens kropp (ett farligt tillstånd som kallas "två-blockering" eller "över-lyftning").
Hur det fungerar:Det är en mekanisk eller närhetsbrytare placerad för att utlösas av det uppåtgående krokblocket. När den är aktiverad bryter den omedelbart strömmen tillhissa-uppfungera. Lyften ska fortfarande kunna sänkas, vilket gör att operatören kan korrigera situationen.
b) Nedre gränslägesbrytare (lyfta ner)
Fungera:För att förhindra att krokenheten sänks ner till den punkt där stållinan lossnar helt från trumman, vilket kan skada repet och trummans förankring.
Hur det fungerar:På samma sätt som den övre gränsen bryter den strömmen tillhissa-nerfunktion när den utlöses. Det är ofta inställt på att lämna minst 2-3 varv av rep på trumman.
c) End Travel Limit Switches (mindre vanligt på grundläggande bärbara portaler)
Fungera:På större, motoriseradresandeportaler, kan du hitta gränslägesbrytare i änden av balken för att förhindra att lyftvagnen kraschar in i ändstopparna. Påmobilportaler, färdrörelsen är hela kranen som rör sig på hjul, och ändstopp är vanligtvis manuella (förarens vaksamhet).
Integration och bästa praxis för en 5-tonskran
Obligatoriska säkerhetsfunktioner:För en kran med kapacitet på 5 ton är dessa inte tillval; de ärobligatoriska säkerhetskravenligt internationella standarder som ISO, ASME B30 och OSHA-regler. En kran utan dem är osäker och inte-kompatibel.
Förreglingar:Gränslägesbrytarna är inkoppladeseriemed styrkretsen för sina respektive funktioner. Att bryta kretsen (genom att omkopplaren utlöses) är det som stoppar motorn.
Förbigå:Gränslägesbrytare böraldrig förbigås permanent. De förbigås endast tillfälligt för underhåll eller testning av en kvalificerad tekniker, och varningsetiketter måste användas.
Testning och inspektion:
Larmsystem:Testa ljudet och ljuset före varje skift för att säkerställa att de fungerar.
Gränslägesbrytare:Testa den övre gränslägesbrytaren regelbundet (t.ex. varje vecka) genom att långsamt höja kroken till dess gräns och verifiera att lyften stannar automatiskt.Gör detta utan belastning eller mycket lätt belastning.
Operatörsutbildning:Operatörer måste utbildas i vad dessa larm och gränser betyder och får aldrig försöka besegra dem. Om en gränslägesbrytare stoppar driften måste operatören sänka lasten (vid en övre gräns) och undersöka orsaken, inte bara försöka tvinga rörelse i motsatt riktning.

Säkerhetsanordningar
I. Primära och obligatoriska säkerhetsanordningar
Dessa är inte-förhandlingsbara och krävs vanligtvis av säkerhetsstandarder som OSHA (Coccupational Safety and Health Administration) och ANSI/ASME B30.
1. Överbelastningsgränsbrytare / Lastbegränsare
Ändamål:Detta är den mest kritiska säkerhetsanordningen. Det hindrar kranen från att lyfta en last som är tyngre än dess nominella kapacitet (5 ton i detta fall).
Hur det fungerar:En sensor (ofta mekanisk eller elektronisk) mäter spänningen i lyftlinan. Om belastningen överstiger 105-110 % av den nominella kapaciteten, bryter strömbrytaren automatiskt strömmen till lyftanordningensupprörelse. Denerrörelsen förblir vanligtvis aktiv för att sänka lasten säkert.
2. Övre gränslägesbrytare / lyftgränslägesbrytare
Ändamål:För att förhindra att lyftblocket, kroken eller lasten kommer i kontakt med kranens balk. Denna "över-hissning" kan orsaka katastrofala misslyckanden.
Hur det fungerar:En strömbrytare är placerad för att utlösas när lyftkroken närmar sig balken. Den bryter strömmen tillupprörelse, vilket tvingar operatören att sänka kroken innan han fortsätter.
3. Nödstopp (E-Stopp)
Ändamål:För att tillåta föraren att omedelbart stänga av all ström till kranens rörelser i händelse av en nödsituation eller observerad fara.
Hur det fungerar:En väl synligt placerad, stor, röd knapp (ofta svampformad-) på kontrollen. När den trycks ned låses den i öppet läge och måste återställas manuellt (vanligtvis genom att vrida eller dra) för att återuppta driften.
4. Lastkrokar med säkerhetsspärrar
Ändamål:För att förhindra att selen eller kedjan oavsiktligt lossnar ("hoppar av") kroken.
Hur det fungerar:En fjäderbelastad spärr- täcker krokens halsöppning. Spärren bör vara obligatorisk för alla lyftapplikationer.
5. Strukturella ändstopp / buffertar
Ändamål:För att förhindra att lyftvagnen rinner av ändarna på brobalken.
Hur det fungerar:Fysiska block (ofta gjorda av härdat gummi eller metall) bultas eller svetsas till varje ände av balken. Vagnen kan inte åka förbi dessa punkter.
II. Driftsäkerhetsfunktioner
Dessa är designegenskaper som direkt bidrar till säker drift.
1. Bromssystem
Lyftbroms:En automatisk, felsäker-broms som håller lasten när lyftmotorn inte är strömsatt. Den kopplar in om det blir strömavbrott.
Trolley & Gantry Bromsar:På mer avancerade modeller kan bromsar finnas på vagnens rörelse- och portalmotorer för att kontrollera rörelser, särskilt i sluttningar.
2. Pendelkontrollstation (om sådan finns)
Design:Bör vara hållbar, med tydligt markerade, intuitiva kontroller för upp/ner, vänster/höger och framåt/bakåt.
Lågspänning:För operatörens säkerhet arbetar hängande kontroller vanligtvis på en låg spänning (t.ex. 24V eller 48V), som transformeras ner från huvudströmförsörjningen, vilket minskar risken för elstöt.
3. Låsning av hjul/hjul
Ändamål:Att immobilisera hela portalkranen när den väl är på plats, vilket förhindrar oavsiktlig rörelse under lyftet.
Hur det fungerar:De flesta bärbara portaler har minst två svängbara hjul med bromsar. Det bästa är att ha bromsar på alla fyra hjulen.
III. Passiv säkerhet och designfunktioner
Dessa är inbyggda-i egenskaper som förbättrar den övergripande säkerheten.
1. Nominell kapacitet/dataskylt
Ändamål:Kommunicerar tydligt kranens säkra arbetsgränser.
Detaljer:Måste vara permanent märkt och synlig. Den inkluderar SWL (Safe Working Load) på 5 ton, modellnummer, serienummer och tillverkaruppgifter.
2. Svetsad konstruktion & strukturell integritet
Även om det inte är en "enhet", måste kranen vara byggd av hög-kvalitetsmaterial (vanligtvis stål) med certifierade svetsprocedurer för att hantera inte bara 5-tonslasten utan de dynamiska krafterna (chockbelastningar) från lyft och förflyttning.
3. Icke-ledande nylonhjul/isoleringsdyna
Ändamål:För att skydda föraren vid lyft av last i miljöer med spänningsförande elektriska komponenter eller ledningar. De förhindrar att kranen blir en väg till marken.
Notera:Detta är en specifik funktion för vissa miljöer och kanske inte är standard på alla modeller.
4. Anti-Glidytor
Strukturerade eller rivna ytor på alla stående områden (t.ex. på en högre portalplattform) för att förhindra halkar och fall under inspektion eller drift.
Kontrollläge
1. Manuell kontroll (kedjetelfer)
Det här är den enklaste och mest kostnadseffektiva-metoden. Kranens rörelse (förflyttning längs balken) och lyftfunktioner drivs helt av mänsklig kraft via kedjor.
Lyft: A manuell kättingtelfer(t.ex. en hävstångslyft eller handkedjetelfer) hängs från vagnen. Föraren drar i en kedja för att lyfta och sänka lasten.
Trallresor:Vagnen flyttas längs brobalken genom att dra en separat kedja.
Gantry-rörelse:Hela kranen flyttas genom att fysiskt trycka eller dra i benen. Många modeller har hjul som kan växlas från fasta till svängbara för enkel manövrering.
Typiskt användningsfall:Idealisk för små verkstäder, underhållsplatser eller applikationer där lyft är sällan och en strömkälla inte är lättillgänglig.
2. Pendelkontroll med tryckknapp (vanligast för elektriska modeller)
Detta är standardstyrläget för elektriska-drivna 5-tons bärbara portalkranar. Alla funktioner är motoriserade och styrs av en operatör med hjälp av en handhållen kontrollbox (pendeln) kopplad till kranen via en kabel.
Kontrollerade funktioner:
Lyfta upp/ner:Styr den elektriska hissen.
Trallresor:Flyttar lyft- och vagnsidan-till-sida längs brobalken.
Bridge Travel:Flyttar hela portalkranen framåt och bakåt längs marken.
Säkerhetsfunktioner:Hängen har en nödstoppsknapp (E-stopp) och kräver att operatören kontinuerligt trycker på knapparna för drift (en "dödmansbrytare"), vilket ökar säkerheten.
Typiskt användningsfall:Arbetshästen för tillverkning, löpande band och lastbryggor. Det ger exakt kontroll samtidigt som föraren håller sig på säkert avstånd från lasten.
3. Trådlös radiofjärrkontroll
Detta är en premiumfunktion som erbjuder största flexibilitet och säkerhet för föraren. Den fungerar precis som den hängande kontrollen men utan den fysiska kabelhållaren.
Hur det fungerar:En batteridriven-handhållen sändare skickar signaler till en mottagarenhet monterad på kranen.
Viktiga fördelar:
Rörelsefrihet:Föraren kan placera sig var som helst för bästa sikt över lasten och landningsområdet, inklusive att gå bredvid den.
Förbättrad säkerhet:Eliminerar snubbelrisken för en hängande kabel och tillåter drift från ett säkert avstånd, särskilt viktigt om lasten kan förskjutas eller falla.
Idealisk för solooperatörer:Ger oöverträffad synlighet och kontroll när ingen är tillgänglig för att guida dig.
Typiskt användningsfall:Stora monteringshallar, stålfabriker, lastning av mycket stora föremål där operatörens perspektiv är avgörande, och alla miljöer där en kabel skulle vara opraktisk eller farlig.
4. Kabinkontroll (mycket sällsynt på bärbara modeller)
Detta innebär att en operatör sitter i en dedikerad hytt monterad på själva portalkranen. På grund av den bärbara och ofta lägre-klarheten hos en 5-tons mobil portal är detta extremt ovanligt. Den finns nästan uteslutande på mycket stora, fasta, industriella portalkranar med kapaciteter som långt överstiger 5 ton.

12. Skiss

Huvudsaklig teknisk

Fördelar
Kärnfördelarna med en 5-tons mobil portabel portalkran
1. Oöverträffad portabilitet och mobilitet
Enkel flytt:Till skillnad från fasta portal- eller bryggkranar är dessa kranar utformade för att lätt kunna flyttas. De är vanligtvis lätta (i förhållande till sin kapacitet) och har ofta funktionersvängbara hjul med bromsarpå alla fyra benen. Detta gör att en enda förare kan skjuta kranen dit den behövs på ett jämnt golv.
Ingen permanent installation:De kräver inga kostsamma och permanenta grundarbeten, byggnadsändringar eller elektrisk installation för att fungera. Du flyttar den helt enkelt på plats och den är redo att användas.
Idealisk för flera webbplatser:Perfekt för jobbbutiker, lager med ändrade layouter eller anläggningar som behöver betjäna flera arbetsstationer med en enda kran.
2. Överlägsen flexibilitet och mångsidighet
Arbetsstationsfrihet:Kranen kan föras direkt till lasten, istället för att behöva föra lasten till en fast kran. Detta är ovärderligt för maskinverkstäder, tillverkningsområden och monteringslinjer där arbetsplatsen förändras.
Justerbar spännvidd:De flesta modeller tillåter användare att justera bredden mellan benen för att passa olika storlekar av maskiner, pallar eller arbetsområden.
Justerbar höjd:Balkens höjd är ofta justerbar, vilket ger det nödvändiga utrymmet för specifika uppgifter eller för att stapla laster.
Använd inomhus och utomhus:Även om de är bäst på en fast, jämn yta som betong, kan de användas på en gård eller på en asfalterad yta för lastning/lossning av lastbilar eller utomhuslagringsuppgifter.
3. Betydande kostnad-effektivitet
Lägre initialinvestering:De är betydligt billigare att köpa och installera än ett permanent traverssystem eller ett stort fast portal.
En kran för många uppgifter:En enda 5-tons mobil portal kan betjäna en hel verkstad, vilket eliminerar behovet av flera fasta hissar eller dedikerade kranar vid varje station.
Inga installationskostnader:Besparingar på bygg-, elarbeten och ingenjörsavgifter för fasta installationer är betydande.
4. Förbättrad säkerhet och kontroll
Stabil och robust:Designade för en kapacitet på 5 ton, är dessa kranar byggda med en bred bas och starka ben för att ge utmärkt stabilitet under lyft, vilket minskar risken för att tippa.
Exakt lasthantering:Föraren har direkt kontroll över rörelsen, vilket möjliggör exakt positionering av tunga delar på maskiner, in i fixturer eller på lastbilar. Denna kontroll minimerar risken för skador på dyr utrustning eller själva lasten.
Reducerad manuell hantering:Den främsta fördelen med alla kranar är elimineringen av tunga manuella lyft, vilket drastiskt minskar risken för arbetstagares påfrestningar, skador och tillhörande ersättningsanspråk.
5. Oberoende och självständig-drift
Ingen ström krävs:Många är helt manuella och förlitar sig på en skjutvagn i-stil och en handkedjetelfer eller spaklyft. Detta gör dem användbara på avlägsna platser eller områden utan enkel tillgång till ström.
Valfri effekt:För enklare drift kan motordrivna vagnar och elektriska kedjetelfer läggas till, men dessa drivs vanligtvis på uppladdningsbara batterier, vilket bibehåller sin rörlighet.
Inget byggnadsstrukturstöd:Lasten bärs upp av kranens egen ram, inte av byggnadens tak eller stödpelare. Detta är avgörande för äldre byggnader eller de med strukturella begränsningar.
6. Utrymmeseffektivitet
Ren golvyta:Till skillnad från en svängkran som kräver ett fast golvfäste, kan en mobil portal flyttas helt ur vägen när den inte används, vilket frigör värdefull golvyta för andra operationer. Den kan förvaras mot en vägg eller i ett hörn.
Ansökan:
Primära applikationer och användningsfall
1. Lager & Logistik
Lastning/lossning av lastbilar:Placerad direkt vid kajen eller bakluckan för att lyfta tunga föremål på eller av lastbilar utan att behöva en fast dockkran.
Ordna om inventering:Flytta tunga pallar, maskiner eller lagrade föremål inom en lagergång. Dess rörlighet gör att den kan betjäna flera platser.
Orderplockning:Exakt positionering av tunga föremål för ordermontering.
2. Tillverknings- och monteringsbutiker
Maskininstallation och underhåll:Lyfta svarvar, CNC-maskiner, pressar och annan tung utrustning på fundament eller för reparation.
Placering av arbetsstycken:Flytta tunga råmaterial (stålplåtar, stora gjutgods) till arbetsbord, svetsjiggar eller bearbetningscentra.
Monteringsoperationer:Håller stora komponenter på plats för svetsning, bultning eller montering.
3. Byggarbetsplatser
Hanteringsmaterial:Flytta byggmaterial som påsar med betong, armeringsjärnsburar, rörledningar och generatorer runt arbetsplatsen.
Uppställningsområden:Lastning och lossning av material från leveransfordon till ett organiserat uppställningsområde.
Underhållsarbete:Lyft av tunga verktyg eller utrustning för reparations- och underhållsuppgifter på-platsen.
4. Metallbearbetnings- och tillverkningsbutiker
Hantering av plåt och balkar:Lyfta och manövrera stora, besvärliga metallplåtar eller långa strukturella balkar (I-balkar, kanaler) för skärning, bockning eller svetsning.
Roterande laster:Används i kombination med en balkvagn för att enkelt flytta laster längs balkens längd, idealisk för placering i stora arbetsceller.
5. Underhåll, reparation och drift (MRO)
Reparation av utrustning:Lyfta motorer, pumpar, växellådor och andra komponenter ur maskiner för översyn.
Plantavbrott:Viktigt för planerade underhållsstopp där fasta kranar kan vara otillgängliga eller överbelastade. Kan tas in tillfälligt för att assistera.
Motorlyft:En vanlig användning är att lyfta motorer ur fordon, båtar eller industriell utrustning.
6. Frakt- och mottagningsavdelningar
Inspektera inkommande varor:Lyft av tunga lådor och försändelser från pallar för kvalitetskontrollinspektioner.
Ompackning/Ommärkning:Hantering av tunga produkter som behöver ompaltas eller förberedas för utgående frakt.
7. Flyg- och fordonsindustrin
Hantering av komponenter:Lyfta och placera under-underenheter, jiggar, verktyg och delar som flygplansvingar, flygkroppssektioner eller fordonschassier i FoU-, reparations- eller specialbyggda butiker.
8. Event- och riggningsindustrier
Ställa in stadier:Lyfter tung ljudutrustning, ljusriggar och takstolar på plats för konserter, teatrar och konferenser.
Procedur för kranproduktion
Fas 1: Engineering & Design
Mål:Att skapa detaljerade designplaner, beräkningar och stycklistor (BOM) som uppfyller specificerade krav och internationella standarder (t.ex. ISO, ASME, CMAA).
Kravanalys:
Definiera nyckelparametrar: Kapacitet (5 ton), spännvidd, lyfthöjd, mobilitetskrav (hjultyp, yta), driftsmiljö (inomhus/utomhus).
Bestäm efterlevnadsstandarder (t.ex. CMAA 74, OSHA).
Strukturell design och beräkning:
CAD-modellering:Skapa 3D-modeller av hela kranstrukturen (två ben, en eller två balkar, stag, ändbilar).
Finita elementanalys (FEA):Utför struktursimulering för att analysera spänningar, deformation och buckling under full belastning (5 ton) och sidodragningsförhållanden. Se till att nedböjningen är inom gränserna (vanligtvis Spännvidd/500 för brobalkar).
Beräkning av belastning och stabilitet:Verifiera stabiliteten mot tippning. Beräkna belastningen på varje hjul och välj lämpliga hjul/hjul.
Lyftklackdesign:Konstruera och beräkna bärförmågan- för de övre balkens lyftöglor.
Mekanisk och elektrisk design:
Val av lyftanordning:Specificera en certifierad 5-tons kapacitet elektrisk eller manuell kättingtelfer. Designa gränssnittet för montering av hissen på balken.
Elsystem (om tillämpligt):Utforma kopplingsschemat för tryck-knappens hängande kontroll för lyften och vagnen (om motoriserad).
Hjul & axeldesign:Konstruera axelmonterings- och bromssystemet (om det behövs).
Dokumentation:
Skapa detaljerade tillverkningsritningar för alla komponenter.
Skapa en omfattande stycklista som listar alla råmaterial, inköpta delar (hiss, hjul, motorer, elektriska komponenter) och fästelement.
Förbered monteringsanvisningar och en testprocedur.
Fas 2: Upphandling & Materialberedning
Mål:Att köpa alla nödvändiga material och komponenter.
Råvaruanskaffning:
Beställ konstruktionsstålsektioner (vanligtvis I-balkar eller lådsektioner för huvudbalken, rektangulära ihåliga sektioner för benen) enligt BOM och skärplan.
Inköpta komponenter:
Beställ 5-tons lyftenhet, vagn (manuell eller motoriserad), polyuretan- eller nylonhjul med bromsar, elektriska komponenter (kabel, hängstation, kontaktorer) och all nödvändig hårdvara.
Materialförberedelse:
Skärande:Kapa stålbalkar och plåtar till önskade dimensioner med CNC-plasmaskärare, bandsågar eller saxar för hög precision.
Ytförberedelse:Kulblästrade bitar för att ta bort kvarnskal och rost, vilket ger en ren yta för svetsning och målning.
Fas 3: Tillverkning & bearbetning
Mål:Att tillverka alla strukturella komponenter.
Bearbetning:
Bearbeta de passande ytorna för ändtruckarna och benens gångjärn (om de är justerbara) för att säkerställa en platt, fyrkantig passform.
Under-tillverkning av montering:
Benmontering:Svetsa bensektionerna, stag och fotplattor/hjulmonteringsplattor. Se till att de är fyrkantiga och sanna.
Sluttruck/tvärbalksmontering:Tillverka monteringen som håller hjulen och ansluter till helljuset.
Tillverkning av helljus:Svetsa huvudbalken och se till att den är rak och har rätt camber (lätt uppåtgående -förböjning för att motverka nedböjning under belastning).
Kvalitetskontroll (under tillverkning):
Inspektera alla svetsar visuellt och via icke-förstörande testning (NDT) som magnetisk partikeltestning (MPT) om det krävs av designen.
Kontrollera kritiska mått mot ritningar.
Fas 4: Under-Montering och för-Målning
Mål:Att montera större komponenter och förbereda för målning.
Trial Fit-Upp:
Montera huvudramen (balken bultad eller fäst vid benen) för att kontrollera passform, inriktning och räthet.
Ta isär efter lyckad montering-.
Ytförberedelse för målning:
Maskera alla bearbetade ytor eller områden som inte bör målas (t.ex. bulthål, elektriska kontaktpunkter).
Applicera ett primerskikt på alla komponenter för att förhindra korrosion.
Fas 5: Målning & Finishing
Mål:För att applicera en hållbar, skyddande och estetisk finish.
Färgapplikation:
Applicera den specificerade täckfärgen (vanligtvis en industriell emalj- eller epoxifärg av hög-kvalitet) i kundens valda färg.
Applicera med sprutpistoler för en jämn och jämn finish.
Härdning:
Låt färgen härda helt enligt färgtillverkarens specifikationer i en kontrollerad miljö.
Fas 6: Slutmontering
Mål:Att montera alla komponenter till slutprodukten.
Mekanisk montering:
Montera hjulen och axlarna på ändbilarna.
Installera vagnspåret på den nedre flänsen av helljuset (om tillämpligt).
Skruva fast eller fäst huvudbalken i de två benenheterna. Montera alla låsstift och säkerhetsanordningar.
Montera lyften och vagnen på balken.
Montera eventuella teleskopiska benförlängningar och fäst dem med stift.
Elektrisk enhet (om tillämpligt):
Montera elpanelen/manöverboxen.
Koppla hängstationen till lyft- och vagnmotorerna.
Utför kontinuitets- och funktionskontroller på elsystemet.
Märkning:
Fäst alla nödvändiga säkerhets- och varningsetiketter.
Fäst denNamnskyltmed viktig information: modell, serienummer, kapacitet (5 ton), spann, tillverkningsdatum och tillverkare.
Fas 7: Testning och kvalitetssäkring (QA)
Mål:För att verifiera att kranen fungerar säkert och uppfyller alla design- och prestandakriterier.
Visuell och dimensionell inspektion:
Kontrollera att alla delar är korrekt monterade, stiften är säkra och etiketter är fastsatta.
Kontrollera övergripande mått.
Funktionstest:
Testa höjningen och sänkningen av hissen genom hela dess räckvidd.
Testa vagnens rörelse längs balken.
Testa kranens rörlighet (skjuta, bromsa, styra).
Lasttest (OBLIGATORISKT):
Provbelastningstest:Lyft en testvikt lika med125%av den nominella kapaciteten (6,25 ton). Håll lasten i 10 minuter och inspektera hela strukturen för eventuella deformationer, sprickor eller defekter. Mät strålböjningen för att säkerställa att den ligger inom de beräknade gränserna.
Bedömd belastningstest:Lyft hela kapaciteten på 5 ton och utför alla funktionella rörelser.
Dokumentation:
Ett formellt testcertifikat genereras, som dokumenterar alla testresultat och bekräftar att kranen har godkänts.
Fas 8: Förpackning och leverans
Mål:För att förbereda kranen för säker frakt.
Demontering (för frakt):
Kranen är delvis demonterad (benen lossnade från balken, lyft ofta separata) för att skapa ett kompakt, fraktbart paket.
Förpackning:
Komponenter är inslagna i skyddsplast eller skum.
Alla delar är säkert monterade på en träsko eller pall för att förhindra rörelse under transport.
All hårdvara, manualer och testcertifikat placeras i en vattentät påse och fästs vid försändelsen.
Avsändande:
Den förpackade produkten skickas till kunden eller distributören.

Verkstadsvy:
Företaget har installerat en intelligent plattform för hantering av utrustning och har installerat 310 set (set) med hanterings- och svetsrobotar. Efter slutförandet av planen kommer det att finnas mer än 500 uppsättningar (uppsättningar), och utrustningens nätverkshastighet kommer att nå 95 %. 32 svetslinjer har tagits i bruk, 50 är planerade att installeras och automatiseringsgraden för hela produktlinjen har nått 85 %.





Populära Taggar: 3 ton mobil bärbar portalkran, Kina 3 ton mobil bärbar portalkran tillverkare, leverantörer, fabrik
Du kanske också gillar
Skicka förfrågan



























